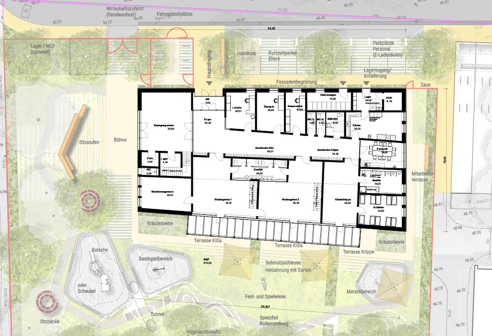
Kindertagesstätte Groß Leuthen
In der dörflichen Struktur wünschten sich die Bauherrn einen Kindergarten mit Satteldach. Wir setzten die Vorgabe so um, das wir ein auf dem Grundriss verdrehtes Gründach in Satteldachform auf das Gebäude setzen.
Dadurch entstehen interessante Fassaden mit steigenden Traufkanten.
Innenräumlich bilden sich Räume mit unterschiedlichen Raumhöhen, die bis in die Dachspitze reichen.
Bauherr: Gemeinde Märkische Heide
Bauort: Kleinleuthener Weg 7, 15913 Groß Leuthen
Bearbeiter: Olaf Reiter, Sebastian Schöler, Fridtjof Schneider
Ausführung: 2025
Freiraumgestaltung: Petzold Steger LandschaftsArchitekten
Fotograf: Sebastian Schöler (CAD)


